您也可以在下面给我们留言,我们将热忱为您服务!
双梁防爆起重机产品介绍:
QB型防爆桥式起重机适用于工厂内引爆能力不高于IIB或IIC级,引燃温度组别为T1-T4组的可燃性气体或蒸汽与空气形成的爆炸性气体混合物的场所,适用的危险区域为1区或2区。
用户在选用QB型防爆桥式起重机时应注明工作制度,工作环境的*高、*低气温及电源种类等技术要求,还可根据用户要求的跨度设计制造。
QB型防爆桥式起重机产品常规操作为地面操作,也可根据用户需要进行司机室操作,工作级别为A4中级。
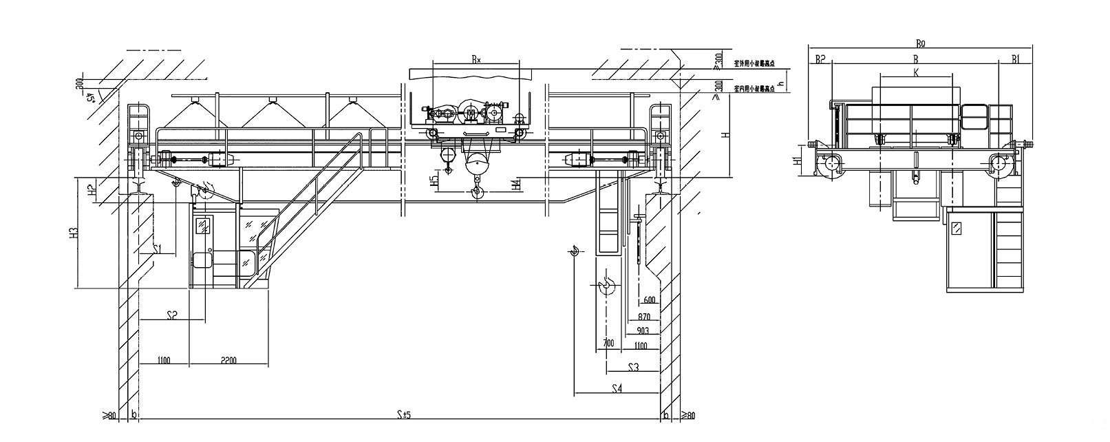
双梁防爆起重机结构简图:

从售前到售后,我们将不遗余力为您提供整体解决方案和一站式服务
您也可以在下面给我们留言,我们将热忱为您服务!