您也可以在下面给我们留言,我们将热忱为您服务!
绝缘加料起重机是在绝缘桥式起重机的基础上通过增设加料小车,完成下列工艺操作:
·为电解槽加氟化铝
·吊运电解槽上部机构和槽壳
·出铝并计量
·吊运阳极母线提升框架
·电解车间的其它零星吊运作业
主要用于电解车间内高温熔盐、大电流、强磁场、多粉尘和氟化氢气氛的环境。
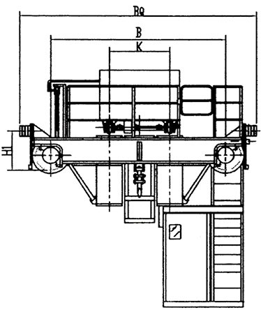
绝缘加料起重机由桥架、大车运行机构、工具小车、出铝小车、加料小车、电气控制系统、空压机及气路控制系统、液压站及油路控制系统几部分组成。
桥架采用三梁三小车结构,主梁上铺有供小车行驶用的轨道,偏轨布置,起重小车和出铝小车同轨道运行,加料小车在另侧轨道运行。
大车运行机构采用8轮2驱动,配轴装式三合一减速器,设有水平导向轮、
工具小车用于吊运一般物品,起升机构类似于吊钩桥式起重机,运行机构采用轴装式三合一驱动。
出铝小车是出铝及吊运重物的专用机构。结构形式同工具小车一样。为吊钩无摆动,设有刚性导向架。并用电子称对铝水称重,可大屏幕显示单台槽吸铝量和累加量及总重。运行机构采用轴装式三合一驱动。吊钩绝缘防磁。
加料小车由运行机构、车架、料仓、下料管卷扬装置、料仓上下限料位计、料位电子测量装置及下料阀等部件组成。运行机构采用轴装式三合一驱动。
司机室和电气室均配有工业冷暖空调。
绝缘吊钩双梁起重机产品介绍:
QY型绝缘吊钩双梁桥式起重机主要由桥架、大车运行机构、小车、电气设备等组成,为了预防在工作过程中带电设备上的电流可能通过被吊运的构件传到起重机上,危及司机的生命及设备的安*,故在起重机的适当部位设置了几道绝缘装置。为确*起吊安*,起升机构配有双制动器。 该起重机的动作操作全部在司机室内完成。本起重机均为重级工作制。
QY型绝缘吊钩桥式起重机适用于有色金属电解铝、镁、铅、锌等冶炼车间。
绝缘吊钩双梁桥式起重机结构简图:


从售前到售后,我们将不遗余力为您提供整体解决方案和一站式服务
您也可以在下面给我们留言,我们将热忱为您服务!