您也可以在下面给我们留言,我们将热忱为您服务!
双小车桥式起重机与吊钩桥式起重机的区别在于主梁上设置两台小车,双小车可以单独起升,也可单独运行;当需要抬吊长件物品时,通过控制台上的转换开关,实现同步起升,同步运行。
双小车双梁起重机产品介绍:
QE型双梁双小车吊钩桥式起重机主要由桥架、大车运行机构、小车、电器设备等组成。本起重机有两台小车,两小车可以同时使用,也可以单独使用。使用吊钩作为起升吊具。司机室平台入口方向分侧面入口,端面入口和顶面入口三种。大车导电安*滑触线、角钢滑线三种方式,应在司机室对侧。
QE型桥式起重机根据利用等级和载荷状态不同,分为A5、A6两种工作级别。
QE型双梁双小车吊钩桥式起重机特点:
A.主梁采用数控开割上拱度预拱曲线,主要角焊缝采用埋弧焊焊接。
B.小车导电装置采用一整条(无分段)的"C型槽+滑车"悬挂电缆。
C.大小车运行采用"软启动"电机。
D.小车自主开发设计,采用自动调节车轮高低,无"三脚猫" 现象。
双梁双小车桥式起重机适用于厂矿企业的车间或露天仓库吊运长件材料(木材,纸筒,管封,棒材)。
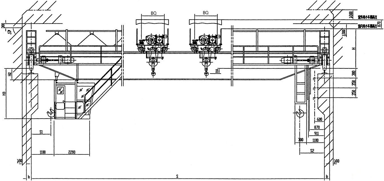
双小车吊钩桥式起重机结构简图:


从售前到售后,我们将不遗余力为您提供整体解决方案和一站式服务
您也可以在下面给我们留言,我们将热忱为您服务!