销售热线:13598730013
公司简介资质荣誉矿山风貌
欧式单双梁起重机单梁桥式起重机双梁起重机系列门式起重机系列起重机电动葫芦轻小型起重设备起重机相关配件
公司新闻行业新闻技术解答
- 公司简介- 资质荣誉- 矿山风貌
- 欧式单双梁起重机- 单梁桥式起重机- 双梁起重机系列- 门式起重机系列- 起重机电动葫芦- 轻小型起重设备- 起重机相关配件
- 公司新闻- 行业新闻- 技术解答
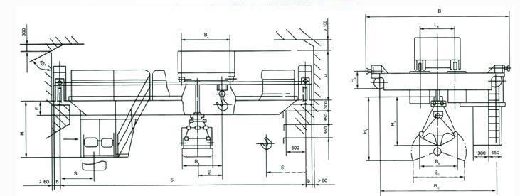
抓斗吊钩两用桥式起重机产品介绍:QN型抓斗吊钩两用桥式起重机是指可用吊钩作为吊具,也可使用抓斗作为吊具的双梁桥式起重机。起重量5~16t;跨度10.5m~50m;工作级别A6~A8;广泛应用于起重运输、冶金、电力、港口码头等各行各业,**适用于冶金行业加料作业的工况。抓斗吊钩两用起重机结构简图:
从售前到售后,我们将不遗余力为您提供整体解决方案和一站式服务
您也可以在下面给我们留言,我们将热忱为您服务!