您也可以在下面给我们留言,我们将热忱为您服务!
铸造桥式起重机是钢厂冶炼车间的主要起重运输设备,用于冶炼过程中液态金属的转运、浇注及兑铁水等作业。125t以下一般为YZ型双梁结构。125t以上一般为YZS型四梁结构。
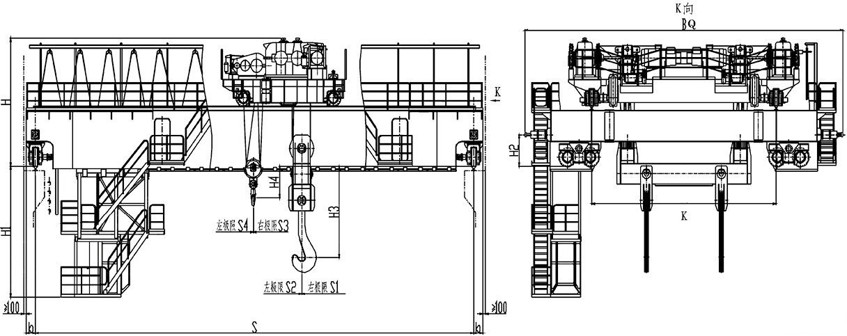
YZS型采用主副双小车、四梁四轨结构,主要由桥架、主小车、副小车、吊钩梁、大车运行及电气部分组成,主小车在桥架外侧的主梁轨道上运行,副小车在桥架内侧的副梁轨道上运行,主小车取物装置为固定间距的吊钩梁,用来吊运钢水包,副小车在主小车下穿越运行,取物装置为吊钩,用来与主钩配合以倾倒钢水、钢渣及其它辅助性吊运作业。
YZ型铸造桥式起重机采用双梁单小车结构,主要由桥架、小车、吊钩梁、大车运行及电气部分组成,主钩取物装置为固定间距的吊钩梁,用来吊运钢水包,副钩用来与主钩配合以倾倒钢水、钢渣及其它辅助性吊运作业。
大车运行机构和主要电气设备均安装在主梁内,主梁电气室内装有冷风机。为了减轻钢水对金属结构件的热辐射,在主梁底部沿跨度方向设有隔热板。
大车运行机构采用四角驱动形式。
起重机配有专用电子秤,在司机室内和桥架上均有明显的显示装置。
铸造起重机产品介绍:
YZ型冶金铸造桥式起重机是炼钢连铸工艺中的主要设备之一。主要用于转炉加料跨向转炉兑铁水,在精炼跨将钢水吊运至精炼炉或在钢水跨将钢水吊运至连铸回转大包台上。
YZ型冶金铸造起重机总体构造可分为:双梁双轨、四梁四轨、四梁六轨等形式。双梁双轨和四梁四轨形式一般用于中、大吨位铸造起重机,四梁六轨双小车形式一般用于吨位铸造起重机。
冶金铸造起重机是我厂集团生产的主导产品之一。本公司设计制造的冶金铸造起重机技术先进、结构新颖、安*、经济耐用、维护简单。
我公司生产的YZ型冶金铸造起重机可以根据用户要求,提供如下功能:
1.各机构可调速;
2.吊具可旋转;
3.龙门钩钩距可变;
4.载限制及报警;
5.载荷的称重及显示、PLC控制及故障检测、显示、记录和打印系统;
6.预防同跨起重机之间的碰撞。
铸造起重机结构简图:

从售前到售后,我们将不遗余力为您提供整体解决方案和一站式服务
您也可以在下面给我们留言,我们将热忱为您服务!