MH型电动葫芦箱型门式起重机

MH型电动葫芦箱型门式起重机

所属分类:门式起重机系列
产品概述: 产品型号:MH型起升吨位:3-16吨起升高度:9米适用跨度:12-30米工作级别:A3单梁门式起重机产品简介:MH型电动葫芦门式起重机与CD1、MD1型电动葫芦配套使用,适用于露天作业的固定跨间,可根......
实力厂家 运行稳定 降本增效 支持定制
60s急速响应 30min答复 24h免费定制方案
产品介绍

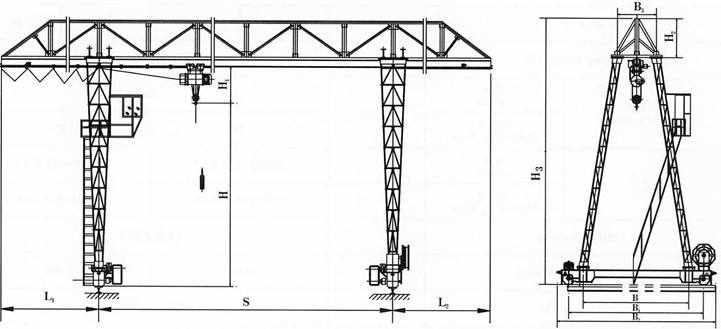
     电动葫芦门式起重机是有轨运行的中小型起重设备,主要由门架(主梁、支腿、下横梁等)、起升机构、运行机构及电控部分组成,以电动葫芦作为起升机构,工作时沿主梁工字钢下翼缘运行。门架结构分箱形和桁架两种,箱形工艺好,制作方便;桁架自重轻,抗风能力强。整机具有自重轻、结构简单、安装维修方便等特点,适用于中小起重量范围内的厂矿、货场及仓库等室外场所作一般装卸吊运工作。
单梁门式起重机产品简介:
MH型电动葫芦门式起重机与CD1、MD1型电动葫芦配套使用,适用于露天作业的固定跨间,可根据用户要求制成无悬臂式,单悬臂式或双悬臂式结构。根据结构形式可以分为厢型式和桁架式。本机禁止吊运易燃易爆物品。

MH型电动葫芦单梁门式起重机产品概述
1、MH型电动葫芦门式起重机具有门形框架结构,其承载主梁下安装有两条支腿,大车可以在地面预铺轨道上行走。具有场地利用率高、作业范围大、适应面广、通用性强等特点,广泛使用于室外的货场、料场、散货的装卸作业。
2、MH型电动葫芦门式起重机整机与CD1型、MD1型电动葫芦配套使用,电动葫芦悬挂于主梁工字钢或主梁下沿上,其起重量为1t-16t,跨度为7.5-28.5m,工作级别为A3-A4,工作环境温度为-25℃~40℃。
3、MH型电动葫芦门式起重机设有地面和操纵室两种操作形式。地操通常采用手柄按钮+遥控器的操作模式;操作室分为开式和闭式两种,可根据情况分为左装和右装两种。
4、MH型电动葫芦门式起重机通常采用锥形制动电机作为起升和运行使用,减速装置采用齿轮减速传动;整机设有起升、下降限位开关、大车行程开关,手柄按钮、载限制器等配套件。
5、MH型电动葫芦门式起重机禁止在易燃、易爆、腐蚀性介质环境中使用。
6、MH型电动葫芦门式起重机主梁可单向外悬和双向外悬,主梁结构有桁架结构和箱型梁结构;通过对梁主梁结构的合理设计,选择适合的主梁结构,可极大的降低建设成本。

单梁门式起重机订购说明:
采购单梁门式起重机请告知以下数据,以便我们能更快确认您的需求!
1、起重量;
2、跨度(轨道中心至导轨中心);
3、起升高度(钩中心接地);
4、是否需要外悬(请提供外悬长度);
5、需要导轨和电缆吗?(请提供运行长度);
6、其他其它要求如果您有更多的详细资料,请告知,我们会更*确的给出价格!

55.jpg56.jpg

相关产品

合作案例10000+ 家客户倾心之选
我们的优势

从售前到售后,我们将不遗余力为您提供整体解决方案和一站式服务

实力厂家
我们始终秉持“专一、专注”的精神,提供匠心工具,服务全球千万用户
经验丰富
我企业拥有大量大型项目服务经验,是中铁、中建等各大企业的合作供应商
质量保障
厂区6S管理体系,提高服务,保证质量,为企业输出的产品质量保驾护航
售后支持
开设24小时免费热线,对客户提出的维护要承诺时间内提供完善的售后服务
在线留言 如果您正在寻找相关产品或有其他任何问题可随时拨打我公司销售热线 13598730013

您也可以在下面给我们留言,我们将热忱为您服务!